REQUEST AN APPRAISAL
Start your property consultation today and achieve the best outcome.
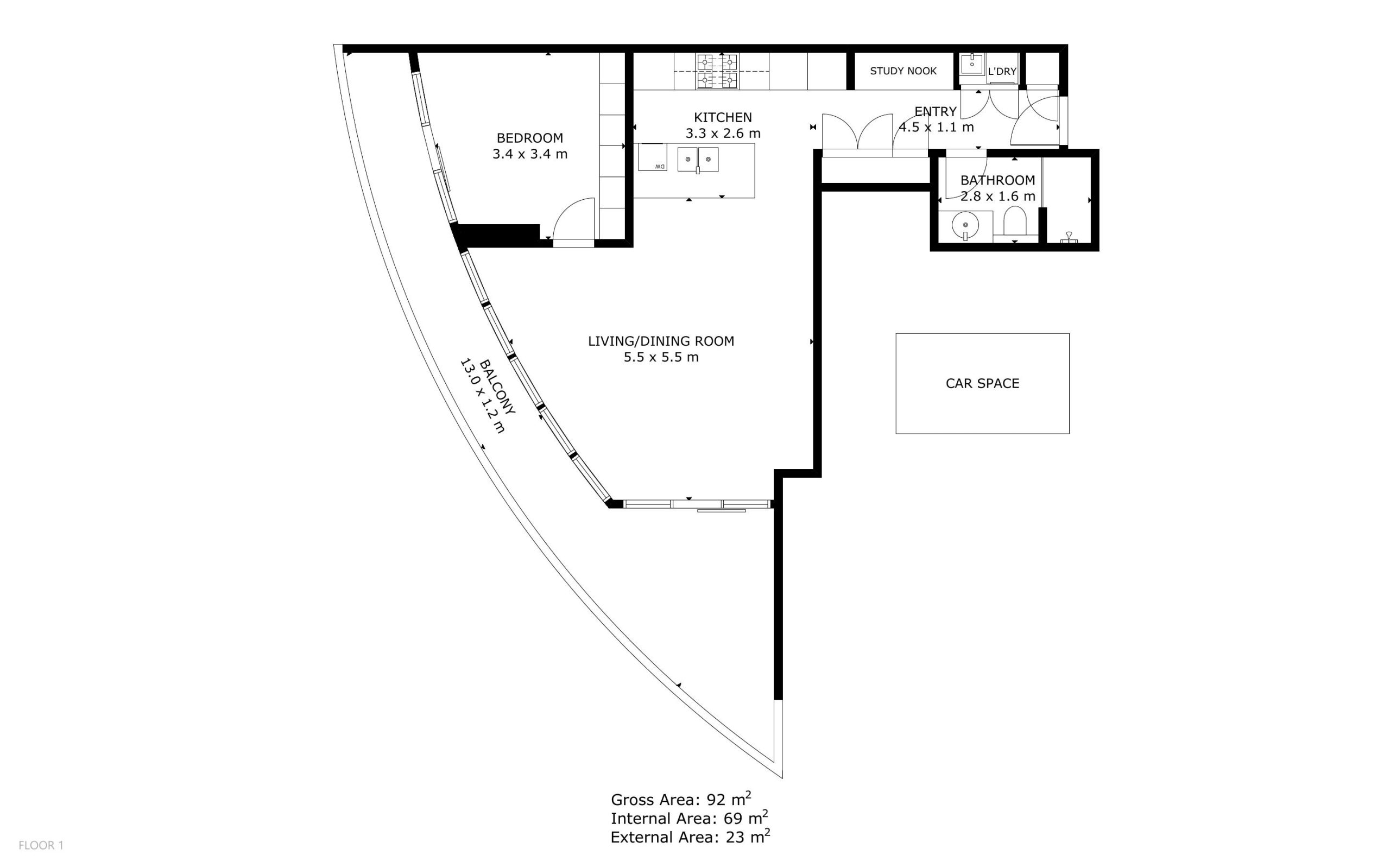
501/2 Glenti Place Docklands 3008
Experience a world of architectural distinction from your sanctuary with serene harbour views. This meticulously designed one-bedroom residence is set within the iconic Banksia Tower, a building celebrated for its sculptural form and commanding presence on the Docklands skyline.
From the moment you enter, you are greeted by a sense of space and artistry rarely found. Expansive wooden ceilings add warmth and grandeur, while the entire south-eastern aspect opens to a sprawling balcony, framing uninterrupted, picture-postcard views of the harbour.
The open-plan living flows effortlessly into a kitchen that is itself a masterpiece, boasting sleek stone surfaces, a distinctive timber-detailed breakfast bar, and the superior performance of integrated Miele appliances.
The generous bedroom is a peaceful haven, featuring a built-in robe and direct balcony access, inviting you to start each day bathed in light and outlook.
Completing the home is a sleek bathroom and European laundry, study area with ducted heating and cooling ensuring perfect comfort throughout the seasons.
Your lifestyle ascends to new heights on the 18th floor. Banksia Tower’s world-class amenities offer a resort-like experience, featuring outdoor hot tubs, sophisticated BBQ and dining decks, dual resident lounges, a fully-equipped gym, and a communal kitchen—all set against a breathtaking 360-degree panorama of Melbourne and the bay.
Enjoy the added convenience of a secure car space and storage cage, and the freedom of direct access to New Quay Central Park.
